PAKUBA

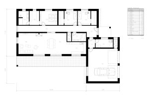
PAKUBA je jednopodlažní dům v obdélném půdorysném tvaru zastřešený plochou střechou, který je doplněn o garáž a  zastřešenou terasu s výhledem do zahrady.


Základní informace  /
Počet obyvatel 4
Počet obytných místností 4
 Celková zastavěná plocha 295 m2
 Podlahová plocha 249,6 m
 Obestavěný prostor 1120 m
 Sklon střechy  1°
Výška hřebene od ±0,0 4,1 m

 

  • dům je vhodný do rovinatého terénu
  • svými prostory uspokojí bydlení až 4 členné rodiny, dle komfortu
  • celý dům je řešen jako jednopodlažní s terasou a garáží

Chcete koupit tento projekt? Ozvěte se nám!


+420603486786
kubaklusacek@centrum.cz