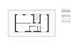
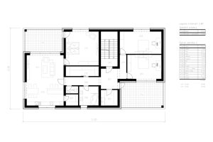
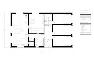
BYTOVÝ DŮM 2

BYTOVÝ DŮM 2 je navržen jako třípodlažní se 3 bytovými jednotkami, každá bytová jednotka má v přízemí svou garáž. Jsou navrženy dvě velikosti bytových jednotek a to 3+KK a 4+KK, bytové jednotky v 2. a 3. podlaží mají vlastní terasy.


Základní informace  /
Počet obyvatel 10
Počet bytových jednotek 3
 Celková zastavěná plocha 252 m2
 Podlahová plocha bytu od 84,5 m
 Obestavěný prostor 2045 m
 Sklon střechy
Výška hřebene od ±0,0 9,3 m

 

  • dům je vhodný do rovinatého terénu
  • v bytovém domě se nachází 3 bytové jednotky o velikostech 3+KK a 4+KK
  • objekt je řešen jako třípodlažní, byty 2. a 3. podlaží mají vlastní terasy

Chcete koupit tento projekt? Ozvěte se nám!


+420603486786
kubaklusacek@centrum.cz