- dům je vhodný do rovinatého terénu
- svými prostory uspokojí bydlení až 5 členné rodiny, dle komfortu
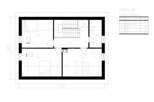
- rodinný dům je řešen jako dvoupodlažní
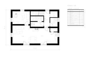
BRUSCH je dvoupodlažní rodinný dům obdélného půdorysného tvaru, který je zastřešen sedlovou střechou. K domu je možné navrhnout i terasu s výhledem do zahrady.
| Počet obyvatel | 5 |
| Počet obytných místností | 4 |
| Celková zastavěná plocha | 92,8 m2 |
| Podlahová plocha | 148,38 m2 |
| Obestavěný prostor | 615 m3 |
| Sklon střechy | 35° |
| Výška hřebene od ±0,0 | 7,6 m |